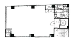
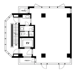
その他の居抜き物件・居抜き店舗・店舗物件の情報

非公開物件も多数ございますので、お気軽にお問い合わせください!賃料、坪数、最寄り駅、地域、徒歩分数等での検索も可能です。また、会員様限定の機能として、マイページより希望物件登録が行えます。お探し中の物件の条件を登録しておけば、新着物件の中から希望条件に合致する物件が定期的にメール配信されます。出店をご検討中のお客様は、是非ご利用ください。

東京都その他の居抜き物件・居抜き店舗・貸店舗一覧

検索結果 3,547
表示順
【都道府県】
東京都
【現況】その他居抜きなど
その他

他のおすすめ条件から物件を探す

その他の市区町村から物件を探す

居抜き物件・貸店舗 | 主な成約事例

  • cover
    駒沢大学:ファニメディック動物医療 グループ

    駒沢公園通りのロードサイドに大型動物病院がOPEN! 角地にあり、車道からの視認性も良く、駐車場も広い物件です。多くの人々が犬の散歩に訪れる憩いの地、駒沢公園まですぐの立地です。物件周辺には富裕層が多く住み、商圏と業種がマッチしています。

    担当者所感
    ロードサイドの物件を取り扱っている不動産会社は限られます。多様な不動産会社が集まるテンポスマートなら、そういった不動産会社に出会える可能性があります。

  • cover
    勝どき:花みつ

    高級食パン専門店「はなみつ」。周囲はタワーマンションが立ち並び、店舗の数に比べて住民が多く、大きい需要が見込めます。帰宅者が利用しやすい、駅直結の物件です。無添加で、自然の甘味と風味を追い求めて作られたパンが、勝どき住民の生活を彩ります。

    担当者所感
    マンションの店舗区画物件の場合は住民との協調が重要です。営業時間や業種制限等を事前にしっかり確認することがポイントです。

  • cover
    赤坂:北の大地

    赤坂オフィス街に「らーめん北の大地 赤坂店」が出店しました。0から作った店舗内装は美麗ですが、当然多額の投資がかかっています。立地に比例して賃料も上がり、契約にあたっては難しい判断が求められていました。最後はテナント様の味への自信が決め手となって出店に至り、今では人気店舗になっています。

    担当者所感
    内装の自由度が高いが初期投資がかかるスケルトン、初期コストが低いが内装の自由度が低い居抜き。ご自身の業態にあった物件探しをお勧めします。

  • cover
    矢向:anphi 矢向

    モノトーンのシェードと、やわらかなグリーンの壁色が青空に映えます。矢向はあまり店舗物件が頻繁に出るエリアではありません。こちらのテナント様はタイミングと条件が合い、地域に密着した可愛らしいサロンが誕生しました。バリアフリーで個室も完備されています。

    担当者所感
    エリアを絞って物件を探す際は、その希望条件をテンポスマートにご登録ください。物件が新しく登録されたら、メールで通知が届くので便利です。テンポスマートに掲載されていない物件情報が不動産会社から届くこともあります。

  • cover
    田町:原価BAR三田店

    入場料を支払えば、原価でお酒が楽しめるお店が三田に登場。店舗機能の集約や、席スペースを確保するため、既存店舗より大型の物件を探していたテナント様にとって、手ごろなサイズ感の物件でした。戸建物件で工事の自由度も高く、管理も良好。三田は昼間人口も高く、お店は学生や会社員で賑わっています。

    担当者所感
    自身の業態が街にあっているかは、街を実際に歩いてみて商圏を調査することが重要です。

  • cover
    宮原:炭火焼鳥とさか 宮原店

    埼玉県内を中心に出店を重ねる居酒屋「とさか」が宮原に進出。駅から近く、地域住民のアクセスは良好です。不動産情報は地域との結びつきが強いものです。今回は、さいたま市に特化した不動産会社様の物件情報と、埼玉県内で集中的に物件を探しているテナント様がWEBを介してマッチングしました。

    担当者所感
    相性の良い不動産会社とタッグを組んで継続的に出店を進めるのも選択肢の一つです。

  • cover
    東陽町:Asian Dining Guras

    永代通り沿いの路面エスニック料理店。ヘルシーなアジア料理とお酒が楽しめます。テラスもあり、大人数にも対応できる120席の大型店舗です。物件のある東陽町駅の周辺は、学校あり、オフィスあり、住居あり、とさまざまな客層をカバーしています。

    担当者所感
    テンポスマートは小規模個人の方向けのサイトと思われがちですが、実際には大型の物件情報も多数あります。

  • cover
    浜松町:カラダキュア浜松町大門

    路面物件は通行人の集客力に優れていますが、競合が多く、賃料も高いものです。こちらの美容鍼灸院は空中階物件ながら、駅出口の直上でビル壁面に大きな看板があり、非常によく目に入る物件です。さらに完全個室で、評判の高い施術を求めたお客様が多数集まっています。

    担当者所感
    空中階や地下の物件を探すのであれば、掲載できる看板の位置や大きさ、専用導入の有無等を確認しましょう。

選択した物件を
まとめて

更新日: 2025/11/07