恵比寿駅 徒歩3分 2F 現況:美容室・理容室 その他居抜きなど物件 【飲食可】の物件情報

美容室居抜き スケルトン相談可能 飲食店可。その他業種等お気軽にお問い合わせください。

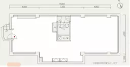
物件詳細

周辺環境 / 立地

Google マップ
会員登録・ログイン後
すべての機能がご利用いただけます
  • ・すべての画像の閲覧
  • ・詳細な住所の表示
  • ・物件資料のPDFダウンロード
  • ・取り扱い不動産会社情報

建物詳細

現況 その他居抜きなど ( 美容室・理容室 )
構造 - 築年月 -
階建 - 駐車場 -

他のおすすめ条件から物件を探す

その他の市区町村から物件を探す

関連エリアから美容室・理容室の物件を探す

関連物件

更新日: 2026/05/23