≪水道橋駅 徒歩5分|1階・飲食相談|38.83㎡≫の物件情報

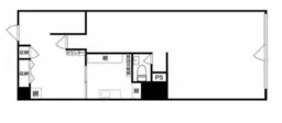
水道橋駅から徒歩5分、千代田区西神田二丁目に位置する1階・専有面積38.83㎡の店舗物件です。周辺にはオフィスや教育施設、飲食店が点在しており、平日を中心に安定した人の流れが見込めるエリアです。1階区画のため来店導線を確保しやすく、飲食業態について内容に応じた相談が可能となっています。コンパクトな面積のため、カフェや軽飲食、テイクアウト併設型など、効率的な店舗運営を検討しやすい点も特徴です。条件面の確認や内覧のご希望がございましたら、お気軽にお問い合わせください。

物件詳細

周辺環境 / 立地

Google マップ
会員登録・ログイン後
すべての機能がご利用いただけます
  • ・すべての画像の閲覧
  • ・詳細な住所の表示
  • ・物件資料のPDFダウンロード
  • ・取り扱い不動産会社情報

建物詳細

現況 その他居抜きなど ( その他 )
構造 - 築年月 -
階建 - 駐車場 -

他のおすすめ条件から物件を探す

その他の市区町村から物件を探す

接続している路線から物件を探す

関連エリアからその他の物件を探す

関連物件

更新日: 2026/05/22