吉祥寺駅 徒歩4分 2F スケルトン物件 【重飲食可】の物件情報
お気軽にお問合せください
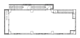
物件詳細
周辺環境 / 立地
| 所在地 | |||
|---|---|---|---|
| 最寄駅 | |||
| 所在階 | 2階 | ||
| 面積 | 42.32坪(139.9㎡) | ||
- 角地
建物詳細
| 現況 | スケルトン | ||
|---|---|---|---|
| 構造 | - | 築年月 | - |
| 階建 | - | 駐車場 | - |
取り扱い不動産会社情報
他のおすすめ条件から物件を探す
接続している路線から物件を探す
更新日: 2025/12/27