田町駅 徒歩3分 2027年3月竣工予定 B1F(3区画)スケルトン物件 【飲食可】の物件情報

お気軽にお問い合わせください

物件詳細

周辺環境 / 立地

所在地
最寄駅
近隣駅
  • 三田駅
  • 都営浅草線
  • 徒歩 1分
所在階 B1階
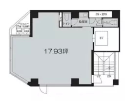
面積 28.68坪(94.82㎡)
Google マップ
会員登録・ログイン後
すべての機能がご利用いただけます
  • ・すべての画像の閲覧
  • ・詳細な住所の表示
  • ・物件資料のPDFダウンロード
  • ・取り扱い不動産会社情報

建物詳細

現況 スケルトン
構造 - 築年月 -
階建 - 駐車場 -

他のおすすめ条件から物件を探す

その他の市区町村から物件を探す

接続している路線から物件を探す

関連物件

更新日: 2026/03/28