JR新宿駅東口出てすぐ!物販、サービス店舗に最適!(飲食店不可)普通借家契約3年!(更新可能)の物件情報

看板使用料:月額33,000円(税込) <テナント構成> B2・B1F フィットネス 1・2F・3F メガネ・眼科 4F クリニック 5F 居酒屋 6F 酸素バー・エステ・パーソナルジム 8F メンズエステティックサロン 9F 事務所 一覧コメント    担当:岡 携帯:090-2139-1464 メールアドレス:oka@re-aspara.co.jpまで直接お問合せください。物件IDをお伝えいただければすぐにお調べいたします。sms対応も可能。メールお問合せいただけましたら詳細図面お送りい

物件詳細

周辺環境 / 立地

所在地
最寄駅
近隣駅
  • 新宿駅
  • JR中央・総武線
  • 徒歩 1分

  • 新宿三丁目駅
  • 東京メトロ丸ノ内線
  • 徒歩 5分
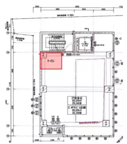
所在階 7階
面積 41.27坪(136.42㎡)
Google マップ
会員登録・ログイン後
すべての機能がご利用いただけます
  • ・すべての画像の閲覧
  • ・詳細な住所の表示
  • ・物件資料のPDFダウンロード
  • ・取り扱い不動産会社情報

建物詳細

現況 スケルトン
構造 - 築年月 -
階建 - 駐車場 -

他のおすすめ条件から物件を探す

その他の市区町村から物件を探す

関連物件

更新日: 2026/05/10