恵比寿駅 徒歩6分 スケルトン物件 【飲食不可】の物件情報

業種等お気軽にお問い合わせください。

物件詳細

周辺環境 / 立地

所在地
最寄駅
近隣駅
  • 恵比寿駅
  • JR埼京線
  • 徒歩 6分
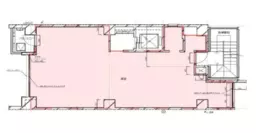
所在階 1階
面積 16.83坪(55.65㎡)
Google マップ
会員登録・ログイン後
すべての機能がご利用いただけます
  • ・すべての画像の閲覧
  • ・詳細な住所の表示
  • ・物件資料のPDFダウンロード
  • ・取り扱い不動産会社情報

建物詳細

現況 スケルトン
構造 - 築年月 -
階建 - 駐車場 -

他のおすすめ条件から物件を探す

その他の市区町村から物件を探す

関連物件

更新日: 2026/04/20