■赤羽駅 徒歩6分 スケルトン物件 【軽飲食可、カフェ・喫茶店・パン屋・ケーキ屋可、クリニック不可】の物件情報

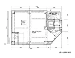
赤羽駅から徒歩6分に位置する、3階の店舗物件のご紹介です。専有面積は24.26坪で、スケルトン渡しのため、業態やコンセプトに合わせた自由度の高い内装づくりが可能です。軽飲食でのご利用が可能となっており、カフェやテイクアウト業態、サービス店舗などにもおすすめです。赤羽エリアで出店をご検討の方にとって、理想の店舗づくりを実現できる物件ですので、ぜひお気軽にお問い合わせください。

物件詳細

周辺環境 / 立地

所在地
最寄駅
近隣駅
  • 赤羽岩淵駅
  • 東京メトロ南北線
  • 徒歩 8分

  • 志茂駅
  • 東京メトロ南北線
  • 徒歩 11分
所在階 3階
面積 24.26坪(80.22㎡)
  • 角地
  • 商店街
  • 複数駅利用可
  • 保証会社加入要
Google マップ
会員登録・ログイン後
すべての機能がご利用いただけます
  • ・すべての画像の閲覧
  • ・詳細な住所の表示
  • ・物件資料のPDFダウンロード
  • ・取り扱い不動産会社情報

建物詳細

現況 スケルトン
構造 RC 築年月 2026年04月(予定)
階建 地上6階 駐車場 -

他のおすすめ条件から物件を探す

その他の市区町村から物件を探す

関連物件

更新日: 2026/03/11