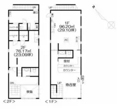
シャルマンコーポ湘南ライフタウン1階店舗。スクーリング教室、事務所等にオススメ!◎飲食店不可の物件情報

上階は分譲マンションです(管理規約有)現況優先となります。

物件詳細

周辺環境 / 立地

Google マップ
会員登録・ログイン後
すべての機能がご利用いただけます
  • ・すべての画像の閲覧
  • ・詳細な住所の表示
  • ・物件資料のPDFダウンロード
  • ・取り扱い不動産会社情報

建物詳細

現況 その他居抜きなど ( その他 )
構造 - 築年月 -
階建 - 駐車場 -

他のおすすめ条件から物件を探す

接続している路線から物件を探す

関連物件

更新日: 2026/01/21