【KKM0909 】横浜駅徒歩圏内1階店舗募集!ショールームやサロンにおすすめ!美容室は諸設備要確認必要。の物件情報
気になった方はお問い合わせしてください!
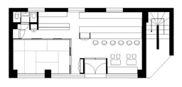
物件詳細
周辺環境 / 立地
| 所在地 | |||
|---|---|---|---|
| 最寄駅 |
|
||
| 所在階 | 1階 | ||
| 面積 | 23.93坪(79.1㎡) | ||
建物詳細
| 現況 | スケルトン | ||
|---|---|---|---|
| 構造 | SRC | 築年月 | 1985年01月 |
| 階建 | 地上9階 | 駐車場 | - |
取り扱い不動産会社情報
他のおすすめ条件から物件を探す
接続している路線から物件を探す
更新日: 2025/10/27