【新築】2027年2月竣工!地上出口至近の新築物件になります。先行でのお申込は受付中!テナント決定次第終了。の物件情報

銀座駅、地上出口より数メートルの物件となります。大通りからの視認性もありお客様へのアナウンスもしやすいロケーションです。諸条件・外観パースなどは作成・調整中となります。飲食店の受け入れに関しましては3F以上にとなります。

物件詳細

周辺環境 / 立地

所在地
最寄駅
近隣駅
  • 銀座駅
  • 東京メトロ丸ノ内線
  • 徒歩 1分

  • 銀座駅
  • 東京メトロ日比谷線
  • 徒歩 1分

  • 東銀座駅
  • 東京メトロ日比谷線
  • 徒歩 8分

  • 有楽町駅
  • JR山手線
  • 徒歩 10分

  • 日比谷駅
  • 東京メトロ日比谷線
  • 徒歩 7分
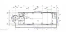
所在階 B1階
面積 19.03坪(62.9㎡)
Google マップ
会員登録・ログイン後
すべての機能がご利用いただけます
  • ・すべての画像の閲覧
  • ・詳細な住所の表示
  • ・物件資料のPDFダウンロード
  • ・取り扱い不動産会社情報

建物詳細

現況 スケルトン
構造 RC 築年月 2027年02月(予定)
階建 地下1階地上8階 駐車場 -

他のおすすめ条件から物件を探す

その他の市区町村から物件を探す

関連物件

更新日: 2026/05/26