志木駅 徒歩14分 現況:クリニック その他居抜きなど物件 【クリニックのみ】の物件情報

現在ヴィレッジ内にございます「耳鼻咽喉科」「脳神経外科・内科」以外のクリックでのご利用をお願い致します。最大15台駐車可。駐車場料金 月額55,000円(税込)

物件詳細

周辺環境 / 立地

所在地
最寄駅
所在階 1〜2階
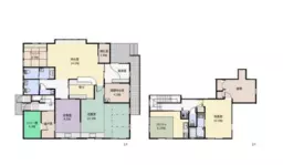
面積 57.11坪(188.8㎡)
Google マップ
会員登録・ログイン後
すべての機能がご利用いただけます
  • ・すべての画像の閲覧
  • ・詳細な住所の表示
  • ・物件資料のPDFダウンロード
  • ・取り扱い不動産会社情報

建物詳細

現況 その他居抜きなど ( クリニック )
構造 - 築年月 -
階建 - 駐車場 -

他のおすすめ条件から物件を探す

接続している路線から物件を探す

関連物件

更新日: 2026/04/29