鶯谷駅 徒歩5分 スケルトン物件 【軽飲食程度相談】※賃料が880000円(税込)まで下がっておりますの物件情報
                                業種はご相談ください。
                            
                                                    物件詳細
周辺環境 / 立地
| 所在地 | |||
|---|---|---|---|
| 最寄駅 | |||
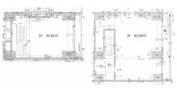
| 所在階 | 1階 | ||
| 面積 | 35.93坪(118.8㎡) | ||
建物詳細
| 現況 | スケルトン | ||
|---|---|---|---|
| 構造 | - | 築年月 | - | 
| 階建 | - | 駐車場 | - | 
取り扱い不動産会社情報
他のおすすめ条件から物件を探す
更新日: 2025/11/04