中野駅5分 再開発中エリア・中野駅南口ファミリーロード商店街沿いの角地好立地物件ですの物件情報

【5~9階】再開発中エリア/中野駅南口ファミリーロード商店街沿いの角地好立地物件です。 飲食店可能、周辺が低層のため景観、眺望が魅力です。

物件詳細

周辺環境 / 立地

所在地
最寄駅
近隣駅
  • 中野駅
  • JR中央・総武線
  • 徒歩 5分

  • 中野駅
  • 東京メトロ東西線
  • 徒歩 5分
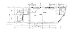
所在階 5〜9階
面積 11.41坪(37.71㎡)
  • 角地
  • 商店街
  • ダクトあり
  • 新築未入居
  • 他階・区画同時募集
Google マップ
会員登録・ログイン後
すべての機能がご利用いただけます
  • ・すべての画像の閲覧
  • ・詳細な住所の表示
  • ・物件資料のPDFダウンロード
  • ・取り扱い不動産会社情報

建物詳細

現況 スケルトン
構造 RC 築年月 2026年12月(予定)
階建 地上13階 駐車場 -

他のおすすめ条件から物件を探す

その他の市区町村から物件を探す

関連物件

更新日: 2026/02/08