赤坂見附駅 徒歩2分 1階居抜き物件!現況:焼肉 飲食居抜き物件 【何業も可】の物件情報

赤坂好立地!1階路面店居抜きです。

物件詳細

周辺環境 / 立地

所在地
最寄駅
近隣駅
  • 赤坂見附駅
  • 東京メトロ丸ノ内線
  • 徒歩 2分

  • 赤坂駅
  • 東京メトロ千代田線
  • 徒歩 5分
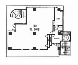
所在階 1階
面積 29.01坪(95.9㎡)
Google マップ
会員登録・ログイン後
すべての機能がご利用いただけます
  • ・すべての画像の閲覧
  • ・詳細な住所の表示
  • ・物件資料のPDFダウンロード
  • ・取り扱い不動産会社情報

建物詳細

現況 飲食居抜き ( 焼肉 )
構造 - 築年月 -
階建 - 駐車場 -

他のおすすめ条件から物件を探す

その他の市区町村から物件を探す

接続している路線から物件を探す

関連エリアから焼肉の物件を探す

関連物件

更新日: 2026/02/03