■神楽坂駅 徒歩6分 現況:その他 その他居抜きなど物件 【飲食不可】の物件情報

神楽坂駅から徒歩6分の3階建て一棟貸し物件で、延床面積は33.63坪です。飲食不可の物件で、専有部にはトイレ、オープンキッチン、収納、人感センサー付照明を備えています。給湯、都市ガス、光ファイバー、オートロック、防犯カメラ、洗濯機置場があり、駐車場1台に加えて駐輪場とバイク置き場が無料で利用できます。構造は木造およびRC造です。お問い合わせをお待ちしています。

物件詳細

周辺環境 / 立地

所在地
最寄駅
近隣駅
  • 飯田橋駅
  • 東京メトロ有楽町線
  • 徒歩 9分

  • 牛込神楽坂駅
  • 都営大江戸線
  • 徒歩 8分
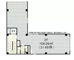
所在階 1〜3階
面積 33.63坪(111.2㎡)
  • ビジネスエリア
  • 複数駅利用可
  • エアコンあり
  • 内階段あり
  • 駐車場有
  • 駐輪スペースあり
  • 即入居可
  • 保証会社加入要
  • 24時間利用可能
  • 演奏可
  • 一棟貸
Google マップ
会員登録・ログイン後
すべての機能がご利用いただけます
  • ・すべての画像の閲覧
  • ・詳細な住所の表示
  • ・物件資料のPDFダウンロード
  • ・取り扱い不動産会社情報

建物詳細

現況 その他居抜きなど ( その他 )
構造 その他 築年月 2003年10月
階建 地上3階 駐車場 -

他のおすすめ条件から物件を探す

その他の市区町村から物件を探す

接続している路線から物件を探す

関連エリアからその他の物件を探す

関連物件

更新日: 2026/04/17