南砂町駅 徒歩14分 現況:その他 その他居抜きなど物件の物件情報

飲食店可,角部屋,1ロア1テナント,土日·祝日利用可,天井高2.5m以上,専有部分にトイレあり,トイレ2ヶ所

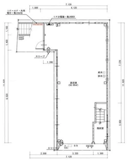
物件詳細

周辺環境 / 立地

Google マップ
会員登録・ログイン後
すべての機能がご利用いただけます
  • ・すべての画像の閲覧
  • ・詳細な住所の表示
  • ・物件資料のPDFダウンロード
  • ・取り扱い不動産会社情報

建物詳細

現況 その他居抜きなど ( その他 )
構造 RC 築年月 1990年10月
階建 地上4階 駐車場 -

他のおすすめ条件から物件を探す

その他の市区町村から物件を探す

接続している路線から物件を探す

関連エリアからその他の物件を探す

関連物件

更新日: 2026/02/10