梅屋敷駅 徒歩1分 スケルトン物件 【重飲食可】24時間利用可 土日・祝日利用可の物件情報

前面ガラス張り/ 看板取付スペースあり

物件詳細

周辺環境 / 立地

所在地
最寄駅
所在階 1〜3階
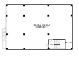
面積 66.84坪(220.96㎡)
Google マップ
会員登録・ログイン後
すべての機能がご利用いただけます
  • ・すべての画像の閲覧
  • ・詳細な住所の表示
  • ・物件資料のPDFダウンロード
  • ・取り扱い不動産会社情報

建物詳細

現況 スケルトン
構造 鉄骨造 築年月 1972年05月
階建 地上3階 駐車場 -

他のおすすめ条件から物件を探す

その他の市区町村から物件を探す

接続している路線から物件を探す

関連物件

更新日: 2025/12/17