神泉駅 徒歩7分 現況:その他 その他居抜きなど物件 【飲食不可】の物件情報
                                業種ご相談ください。看板設置:事前要相談必須。 保険等:要
                            
                                                    物件詳細
周辺環境 / 立地
| 所在地 | |||
|---|---|---|---|
| 最寄駅 | |||
| 近隣駅 | 
                                                                                            
  | 
                                    ||
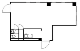
| 所在階 | 3階 | ||
| 面積 | 22.39坪(74.04㎡) | ||
建物詳細
取り扱い不動産会社情報
他のおすすめ条件から物件を探す
接続している路線から物件を探す
その他の現況から物件を探す
更新日: 2025/11/04