■人形町駅【飲食可】※メール問い合わせのみ対応可※の物件情報

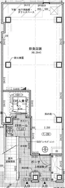
人形町駅から徒歩2分の1階店舗物件です。15.89坪のスケルトン仕様で、飲食店としての利用も可能です。角地に位置する新築物件で、視認性にも優れています。1フロア1テナントのため独立性が高く、24時間利用も可能です。業種やレイアウトのご相談も承りますので、詳細はお気軽にお問い合わせください。

物件詳細

周辺環境 / 立地

所在地
最寄駅
近隣駅
  • 水天宮前駅
  • 東京メトロ半蔵門線
  • 徒歩 8分

  • 浜町駅
  • 都営新宿線
  • 徒歩 8分

  • 馬喰町駅
  • JR総武本線
  • 徒歩 10分

  • 東日本橋駅
  • 都営浅草線
  • 徒歩 10分

  • 小伝馬町駅
  • 東京メトロ日比谷線
  • 徒歩 10分
所在階 1階
面積 15.89坪(52.54㎡)
  • 角地
  • 複数駅利用可
  • 新築未入居
  • ビルイン(1F)
  • 保証会社加入要
  • 24時間利用可能
Google マップ
会員登録・ログイン後
すべての機能がご利用いただけます
  • ・すべての画像の閲覧
  • ・詳細な住所の表示
  • ・物件資料のPDFダウンロード
  • ・取り扱い不動産会社情報

建物詳細

現況 スケルトン
構造 RC 築年月 2025年02月
階建 地上10階 駐車場 -

他のおすすめ条件から物件を探す

その他の市区町村から物件を探す

接続している路線から物件を探す

関連物件

更新日: 2026/01/05