東松原駅 徒歩1分 2025年6月新築 1Fスケルトン物件 【軽飲食可】の物件情報
お気軽にお問い合わせください。
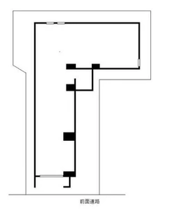
物件詳細
周辺環境 / 立地
| 所在地 | |||
|---|---|---|---|
| 最寄駅 | |||
| 所在階 | 1階 | ||
| 面積 | 18.86坪(62.34㎡) | ||
建物詳細
| 現況 | スケルトン | ||
|---|---|---|---|
| 構造 | RC | 築年月 | 2025年06月 |
| 階建 | 地下1階地上3階 | 駐車場 | - |
取り扱い不動産会社情報
他のおすすめ条件から物件を探す
接続している路線から物件を探す
更新日: 2026/05/09