たまプラーザ駅 徒歩16分 スケルトン物件 【クリニック・医療系のみ】の物件情報
ロードサイド路面店舗。業種等お気軽にお問い合わせ下さい。調剤薬局・小児科・内科は同業NG.
物件詳細
周辺環境 / 立地
| 所在地 | |||
|---|---|---|---|
| 最寄駅 | |||
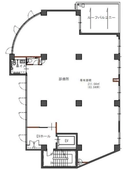
| 所在階 | 3階 | ||
| 面積 | 63.82坪(211㎡) | ||
建物詳細
| 現況 | スケルトン | ||
|---|---|---|---|
| 構造 | - | 築年月 | - |
| 階建 | - | 駐車場 | - |
取り扱い不動産会社情報
他のおすすめ条件から物件を探す
接続している路線から物件を探す
更新日: 2026/04/29