下北沢駅 徒歩1分 スケルトン物件の物件情報

立地:角地,隠れ家立地,ターミナル駅,インバウンド,駅前, 建物:専用導入有り,ビルイン(1F), 契約:保証会社加入要, 制限:24時間利用可能

物件詳細

周辺環境 / 立地

所在地
最寄駅
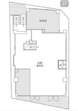
所在階 1階
面積 35坪(115.7㎡)
  • 角地
  • 隠れ家立地
  • ターミナル駅
  • インバウンド
  • 駅前
  • 専用導入有り
  • ビルイン(1F)
  • 保証会社加入要
  • 24時間利用可能
Google マップ
会員登録・ログイン後
すべての機能がご利用いただけます
  • ・すべての画像の閲覧
  • ・詳細な住所の表示
  • ・物件資料のPDFダウンロード
  • ・取り扱い不動産会社情報

建物詳細

現況 スケルトン
構造 SRC 築年月 1991年11月
階建 地上5階 駐車場 -

他のおすすめ条件から物件を探す

その他の市区町村から物件を探す

接続している路線から物件を探す

関連物件

更新日: 2026/04/03