人気の下北沢エリア!おしゃれな新築店舗物件!飲食可能区画!テラス付き!の物件情報

業種などご相談くださいませ!

物件詳細

周辺環境 / 立地

所在地
最寄駅
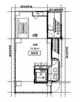
所在階 2階
面積 29.34坪(97.02㎡)
  • 保証会社加入要
Google マップ
会員登録・ログイン後
すべての機能がご利用いただけます
  • ・すべての画像の閲覧
  • ・詳細な住所の表示
  • ・物件資料のPDFダウンロード
  • ・取り扱い不動産会社情報

建物詳細

現況 スケルトン
構造 鉄骨造 築年月 2024年06月
階建 地上6階 駐車場 -

他のおすすめ条件から物件を探す

その他の市区町村から物件を探す

接続している路線から物件を探す

関連物件

更新日: 2025/12/23