百合ヶ丘駅 徒歩5分 スケルトン物件の物件情報

新築 地下有り スケルトン

物件詳細

周辺環境 / 立地

所在地
最寄駅
近隣駅
  • 新百合ヶ丘駅
  • 小田急線
  • 徒歩 11分
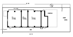
所在階 B1〜1階
面積 36.18坪(119.61㎡)
Google マップ
会員登録・ログイン後
すべての機能がご利用いただけます
  • ・すべての画像の閲覧
  • ・詳細な住所の表示
  • ・物件資料のPDFダウンロード
  • ・取り扱い不動産会社情報

建物詳細

現況 スケルトン
構造 RC 築年月 2024年02月
階建 地下1階地上3階 駐車場 1台

他のおすすめ条件から物件を探す

接続している路線から物件を探す

関連物件

更新日: 2026/05/29