☆ご質問や内見希望の方は【問い合わせ】からメッセージをお願い致します☆※お電話はお控えください。の物件情報
☆気になる方は今すぐ【問い合わせ】をタップ!!☆※お電話はお控えください。
物件詳細
周辺環境 / 立地
| 所在地 | |||
|---|---|---|---|
| 最寄駅 | |||
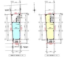
| 所在階 | 1階 | ||
| 面積 | 20.27坪(67.01㎡) | ||
建物詳細
| 現況 | スケルトン | ||
|---|---|---|---|
| 構造 | RC | 築年月 | 1986年11月 |
| 階建 | 地上4階 | 駐車場 | - |
取り扱い不動産会社情報
他のおすすめ条件から物件を探す
接続している路線から物件を探す
更新日: 2026/04/12