【UY1128 】鶴見駅徒歩1分。駅3階から直結。分割利用可能。スケルトン渡し。業種はなんでも相談可能。の物件情報
【UY1128 】鶴見駅徒歩1分。駅3階から直結。分割利用可能。スケルトン渡し。業種はなんでも相談可能。
物件詳細
周辺環境 / 立地
| 所在地 | |||
|---|---|---|---|
| 最寄駅 | |||
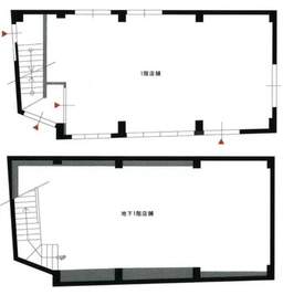
| 所在階 | 2階 | ||
| 面積 | 31.6坪(104.49㎡) | ||
建物詳細
| 現況 | スケルトン | ||
|---|---|---|---|
| 構造 | - | 築年月 | - |
| 階建 | - | 駐車場 | - |
取り扱い不動産会社情報
他のおすすめ条件から物件を探す
更新日: 2026/02/28