半蔵門駅 徒歩4分 【飲食不可】の物件情報
※ 極力建物に手を加えない業種様希望 トイレ清掃費:4,400円/月 水道使用料:5,500円/月 当方指定の保証会社要加入 損害保険加入義務有り
物件詳細
周辺環境 / 立地
| 所在地 | |||
|---|---|---|---|
| 最寄駅 | |||
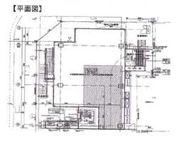
| 所在階 | 1階 | ||
| 面積 | 24.95坪(82.48㎡) | ||
建物詳細
| 現況 | スケルトン | ||
|---|---|---|---|
| 構造 | - | 築年月 | - |
| 階建 | - | 駐車場 | - |
取り扱い不動産会社情報
他のおすすめ条件から物件を探す
接続している路線から物件を探す
更新日: 2026/01/19