銀座一丁目駅 徒歩1分 フルレノベーション物件 【飲食不可】の物件情報
                                1フロア1テナント,専有部分にトイレあり,湯,冷房,暖房,エアコン2台以上,個別空調,光ファイバー,エレベーター。
                            
                                                    物件詳細
周辺環境 / 立地
| 所在地 | |||
|---|---|---|---|
| 最寄駅 | |||
| 近隣駅 | 
                                                                                            
 
  | 
                                    ||
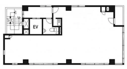
| 所在階 | 1〜2階 | ||
| 面積 | 24.89坪(82.31㎡) | ||
- 複数駅利用可
 
建物詳細
取り扱い不動産会社情報
他のおすすめ条件から物件を探す
接続している路線から物件を探す
その他の現況から物件を探す
更新日: 2025/11/04