【KKM0909】鷺沼駅徒歩圏内!1棟貸し!前テナント歯科医院!駐車場7台有り!の物件情報

気になった方はお問い合わせしてください!

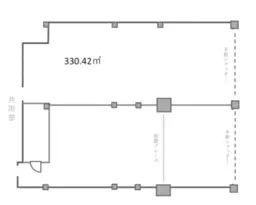
物件詳細

周辺環境 / 立地

Google マップ
会員登録・ログイン後
すべての機能がご利用いただけます
  • ・すべての画像の閲覧
  • ・詳細な住所の表示
  • ・物件資料のPDFダウンロード
  • ・取り扱い不動産会社情報

建物詳細

現況 その他居抜きなど ( その他 )
構造 鉄骨造 築年月 1997年09月
階建 地下1階地上2階 駐車場 7台

他のおすすめ条件から物件を探す

接続している路線から物件を探す

関連物件

更新日: 2025/10/30