■神保町駅【業種相談】※メール問い合わせのみ対応可※の物件情報

神保町駅から徒歩3分、2階部分に位置する39.48坪の事務所仕様物件です。1フロア1テナントの構成で、独立性の高い利用が可能です。現況は事務所仕様となっており、業種についてはご相談に応じます。落ち着いた環境でアクセスも良好なため、幅広い業種に対応可能です。詳細はお気軽にお問い合わせください。

物件詳細

周辺環境 / 立地

所在地
最寄駅
近隣駅
  • 新御茶ノ水駅
  • 東京メトロ千代田線
  • 徒歩 7分

  • 御茶ノ水駅
  • JR中央・総武線
  • 徒歩 8分
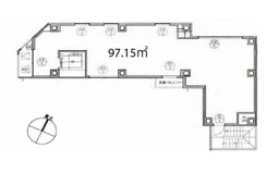
所在階 2階
面積 39.48坪(130.52㎡)
  • ビジネスエリア
  • 複数駅利用可
  • エアコンあり
  • 保証会社加入要
Google マップ
会員登録・ログイン後
すべての機能がご利用いただけます
  • ・すべての画像の閲覧
  • ・詳細な住所の表示
  • ・物件資料のPDFダウンロード
  • ・取り扱い不動産会社情報

建物詳細

現況 その他居抜きなど ( その他 )
構造 鉄骨造 築年月 2022年05月
階建 地上11階 駐車場 -

他のおすすめ条件から物件を探す

その他の市区町村から物件を探す

接続している路線から物件を探す

関連エリアからその他の物件を探す

関連物件

更新日: 2026/01/05